PRESS RELEASES
Development concepts for Fairgrounds and International District unveiled – Three proposals are intended to spark community discussion, input

SANTA FE – A private firm hired to develop a master plan for the Albuquerque Fairgrounds today unveiled three conceptual plans for the city’s International District that could lead to the construction of hundreds of new homes, as well as new entertainment venues, green spaces and businesses.
The proposals developed by Stantec — a global leader in sustainable design and engineering — are intended to generate community discussion and feedback. Planners encourage community input on the specific components of each proposal, which will sharpen the vision for the Fairgrounds.
The preliminary concepts represent a once-in-a-generation opportunity to invest in the District’s future. All three concepts propose mixed-use housing, traffic and pedestrian safety upgrades, entertainment venues, and several acres of public green space, while generating new gross receipts tax revenue to improve the District’s infrastructure.
“These concepts represent a transformative vision for Albuquerque’s core — bringing parks, business, and modern infrastructure that will serve our families and communities for decades to come.” said Governor Michelle Lujan Grisham. “We’re planning to create a vibrant city center that New Mexicans can be proud of.”
Concept 1 preserves and enhances the existing Fairgrounds footprint, upgrading facilities while adding transformative new amenities. Concept 1 includes a state-of-the-art multipurpose event venue, a mixed-use entertainment district and a modern exhibition hall. This option delivers mixed-use housing, new retail space and a 10-acre community park.
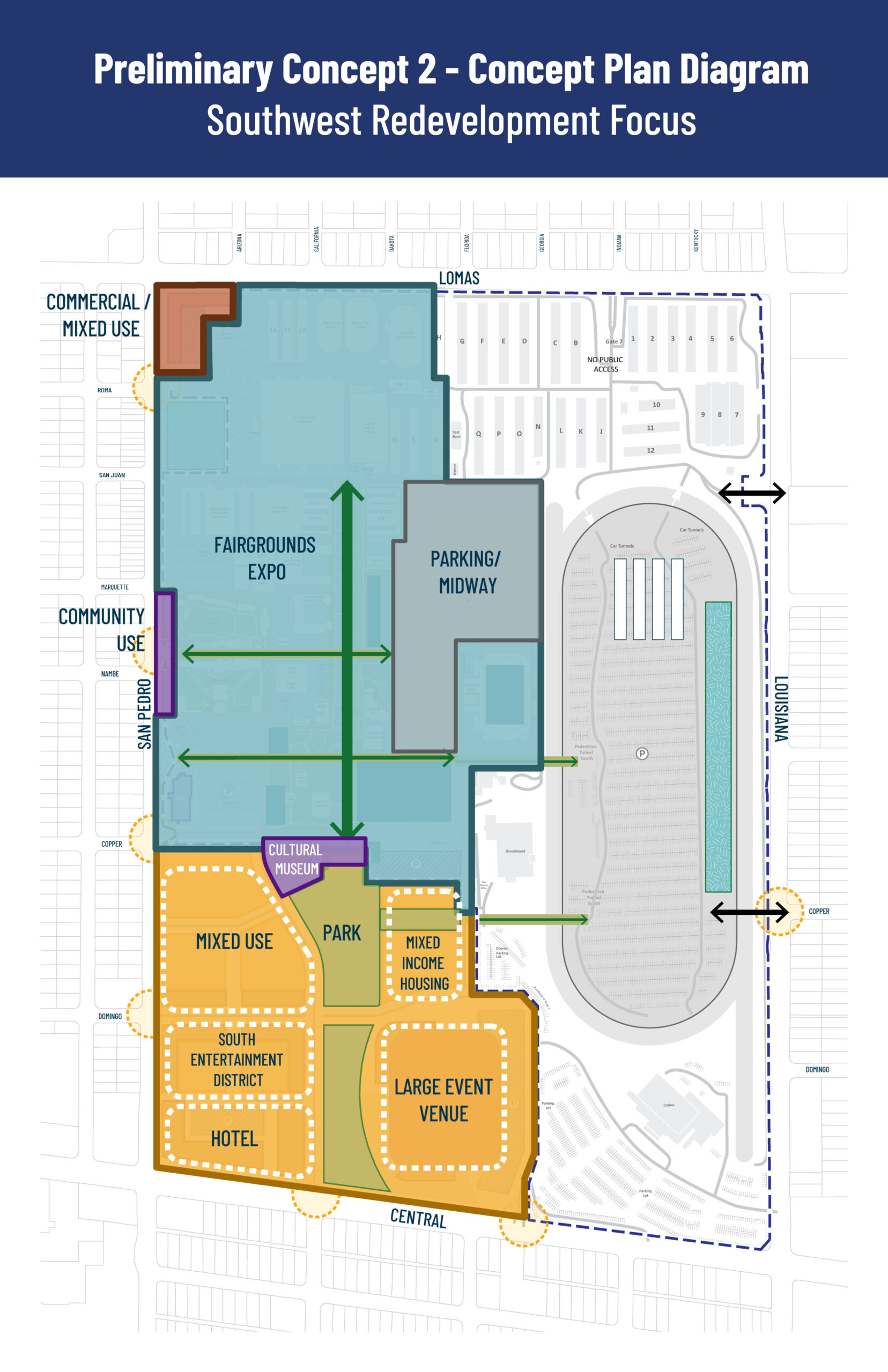
Concept 2 would relocate the State Fair Midway to create space for development of an expanded live-work-play neighborhood. Concept 2 proposes an arena complex, a mixed-use entertainment district, a multi-purpose exhibition hall for conferences and community events, and a nine-acre public park.
Concept 3 envisions a complete site transformation with hundreds of homes, an innovation hub focused on next-generation technology, a large event venue, a walkable main street village and more than 20 acres of park and green space. This concept would foster a range of employment and workforce development opportunities, varied housing options, and a network of parks and open spaces to boost economic development and walkability for Albuquerque residents. Concept 3 proposes the most sweeping change to the 236-acre parcel by relocating the State Fair. This option would maximize the site’s development potential while recognizing the Fair’s deep community roots and history.
“The State Fairgrounds hold special memories for families across New Mexico,” said Rob Black, cabinet secretary of the Economic Development Department. “These plans are the beginning of an exciting next chapter that will revitalize Albuquerque’s International District, create jobs, boost the economy and build a space that families will enjoy for generations.”
All three plans preserve the Downs Racetrack & Casino’s current footprint under its existing long-term lease.
The master planning team continues to seek community and stakeholder input on each development concept. New Mexicans are encouraged to submit online feedback at www.fairgroundsdistrict.nm.gov. A final community meeting is planned for early January to further review the proposals.
New Mexico’s General Services Department hired Stantec, an Alberta-based design and engineering company, to create a master plan for the redevelopment of the New Mexico State Fairgrounds in summer 2025 through a competitive bidding process.
The New Mexico Fairgrounds District Board was created by statute in early 2025 to thoughtfully redesign the Fairgrounds and deliver new community benefits aimed at quickly improving conditions in nearby neighborhoods.
Concept 1.
Concept 2.
Concept 2.

